Trilocale in vendita

Marino, Via Antonio Fantinoli - Cava Dei Selci
€ 165.000
85 Mq 85 Mq
1 bagno 1 bagno

Trilocale in vendita

Marino, Via Antonio Fantinoli - Cava Dei Selci

Descrizione annuncio

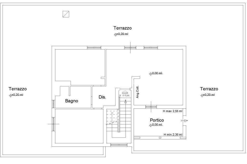
Cava dei Selci: In zona centrale e vicina ai servizi di prima necessità; quali bar, scuole e farmacia, proponiamo la vendita di un attico in ottimo stato, sito al terzo ed ultimo piano con terrazzo panoramico perimetrale.

L'immobile gode di ottima esposizione solare e internamente è composto da: soggiorno con angolo cottura, camera matrimoniale, cameretta, bagno finestrato con doppio lavello e box doccia.

Lo spazio esterno è l'elemento distintivo di questa soluzione, caratterizzato da un ampio e profondo terrazzo panoramico e perimetrale. Ogni ambiente dell'appartamento gode di accesso diretto a questo terrazzo che si estende generosamente e offre numerose possibilità di utilizzo: dall'area relax con vista, alla zona pranzo all'aperto, fino alla comoda zona lavanderia, pensata per garantire funzionalità e praticità.

Completa la proprietà una cantina e un posto auto.

Mostra tutto

Nelle vicinanze

Trasporto pubblico Trasporto pubblico
Santa Maria delle Mole
Santa Maria delle Mole
630 m
Casabianca
Casabianca
1,2 Km
Santa maria
Santa maria
430 m
santa maria
santa maria
450 m
Ricariche auto elettriche Ricariche auto elettriche
CONCESSIONARIO NISSAN Mirauto
870 m
Mirauto Nissan
870 m
CM Motors | EnelX
2,7 Km
Scuole Scuole
Scuole
600 m
Vivaldi
820 m
Liceo Scientifico Statale "Vito Volterra"
1,5 Km
Scuola Anna Frank
1,8 Km
I.T.C.G. Michele Amari
2,2 Km
Farmacia Farmacia
Farmacia
1,9 Km
Farmacia Peretti e Santori
2,8 Km
Farmacia comunale 2
3,0 Km
Supermercati Supermercati
Top
520 m
Coop
700 m
SISA
1,0 Km
Eurospin
1,2 Km
Iper Dem Ciampino
1,2 Km
Negozi Negozi
KIRK
1,9 Km
Cose di casa
2,8 Km
MINIMARKET
2,9 Km
RUBACUORI
2,9 Km
Blog
2,9 Km
Bar Bar
Bar
2,3 Km
Chef Express
2,7 Km
BUDDHA BAR
2,9 Km
Ristoranti Ristoranti
Ristoranti
710 m
Roby dal 1990
1,1 Km
La Madre Paranza
1,3 Km
Il limoncello
1,4 Km
La Madre Panza
1,6 Km
Mostra tutto

Caratteristiche

Rif.:
61087125
Piano:
3 (ultimo Piano)
Posti auto:
1
Terrazzi:
1
Camere da letto:
2
Condizionamento:
Autonomo
Mostra tutto
Prezzo Prezzo
€ 165.000
Rata mutuo Rata mutuo
€ 777 / mese
Proponi il tuo prezzoProponi il tuo prezzo
Immobile valutato con T·Valuta

Altre caratteristiche

Descrizione dei locali
Altri Locali cantina

Classe Energetica

Questo immobile è esente da classe energetica
Anno di costruzione:
1970
Riscaldamento:
Autonomo
Tipo impianto:
A radiatori
Tipo alimentazione:
Metano

Ti interessa visionare l'immobile?

Fissa un appuntamento  Fissa un appuntamento

Richiedi informazioni

Clicca su Leggi per aprire l'informativa
* Questi campi sono obbligatori

Calcola il tuo mutuo

Semplice e senza impegno
Anticipo

( % )
Mutuo

( % )

pochi semplici passi

inserisci i tuoi dati
Questionario completato
Grazie per aver richiesto un appuntamento senza impegno con un nostro Consulente del Credito e Assicurativo.

Hai inserito correttamente tutti i dati necessari e a breve riceverai una e-mail con un link da convalidare per inviare i tuoi dati.
Affiliato
Fpv Immobiliare Srl
Via Calatafimi, 2 00047 Marino (RM)
Via Calatafimi, 2 00047 Marino (RM)
Zona: Castelli Romani-Cava Dei Selci-Frattocchie-Castelluccia-Fontana Sala
Mostra su mappa
Orari: 9:00 - 13:00 15:30 - 20:00
Affiliato
Fpv Immobiliare Srl
Via Calatafimi, 2 00047 Marino (RM)

2026 Tecnocasa Franchising S.p.A. - P. IVA 08365160152 - Via Monte Bianco 60/A 20089 Rozzano (MI). Ogni agenzia ha un proprio titolare ed è autonoma. Privacy policy | Policy utilizzo | Cookie policy