Trilocale in vendita

Marino, Via del Divino Amore - Frattocchie
€ 199.000
Prezzo aggiornato
3 locali 3 locali
120 Mq 120 Mq
2 bagni 2 bagni

Trilocale in vendita

Marino, Via del Divino Amore - Frattocchie

Descrizione annuncio

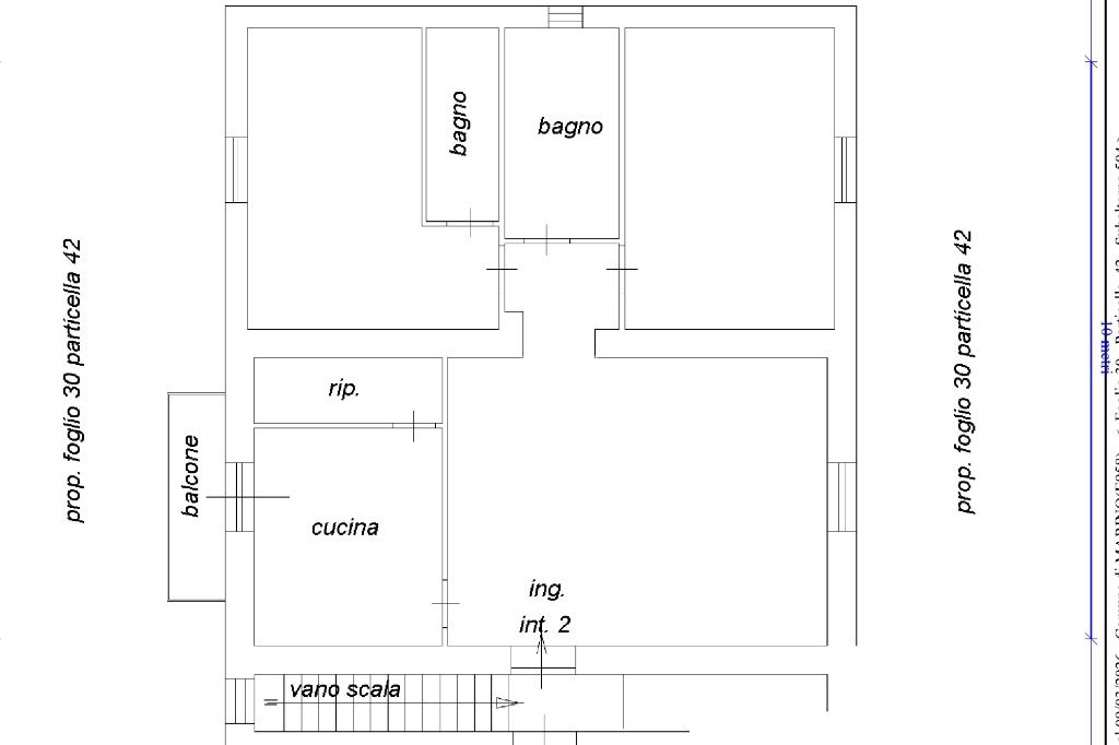
Frattocchie: In una zona immersa nel verde con affaccio sui monti dei Castelli Romani, proponiamo in vendita un appartamento al primo piano di ampia metratura disposto su un unico livello.

L'immobile è composto da salone doppio, cucina abitabile con uscita sul balcone, due camere matrimoniali, una con bagno interno, ed un secondo bagno dotato di vasca e box doccia. Dal ripostiglio si accede tramite una scala apribile al sottotetto, in parte calpestabile che si estende per l'intera superificie della proprietà.

L'immobile è termoautonomo e grazie alla sua esposizione gode di un ottima luminosità.

L'ampia metratura permette di realizzare una terza camera.

Questa soluzione è ottima per chi è alla ricerca di ambienti spaziosi, luminosi e tranquilli.

LA ZONA: Frattocchie è una frazione del comune di Marino, snodo tra la via appia e la via Nettunense, nonchè con la via Ardeatina, tramite via del Divino Amore. La zona è perfetta per raggiungere Roma con i mezzi pubblici, Grazie alla stazione ferroviaria di Santa Maria Delle Mole (linea Roma Termini - Velletri) e alla fermata dell'autobus Cotral.

Mostra tutto

Nelle vicinanze

Trasporto pubblico Trasporto pubblico
Santa Maria delle Mole
Santa Maria delle Mole
1,3 Km
Pantanella
Pantanella
2,1 Km
santa maria
santa maria
1,3 Km
Santa maria
Santa maria
1,3 Km
Ricariche auto elettriche Ricariche auto elettriche
CONCESSIONARIO NISSAN Mirauto
2,3 Km
Mirauto Nissan
2,3 Km
Scuole Scuole
Scuola Anna Frank
220 m
Scuole
470 m
Vivaldi
1,2 Km
Universidad Dallensis
1,6 Km
I.T.C.G. Michele Amari
2,3 Km
Farmacia Farmacia
Farmacia
320 m
Supermercati Supermercati
Top
910 m
Eurospin
1,2 Km
Coop
1,4 Km
SISA
1,5 Km
Iper Dem Ciampino
2,6 Km
Negozi Negozi
KIRK
340 m
Ristoranti Ristoranti
Pizzeria Il Canarino
350 m
La Madre Paranza
360 m
Dar Parente
490 m
L'Oasi della Pizza
510 m
Ristoranti
1,3 Km
Mostra tutto

Caratteristiche

Rif.:
61187279
Piano:
1 di 2 (Piano medio)
Balconi:
1
Camere da letto:
2
Arredamento:
Assente
Condizionamento:
Assente
Mostra tutto
Prezzo Prezzo
€ 199.000
Rata mutuo Rata mutuo
€ 949 / mese
Spese annue Spese annue
€ 0
Proponi il tuo prezzoProponi il tuo prezzo

Classe Energetica

G
G
G
G
G
G
G
G
G
EP globale non rinnovabile:
402.26 kW h/m² anno
EP globale rinnovabile:
1.49 kW h/m² anno
EP invernale del fabbricato:
EP estiva del fabbricato:
Anno di costruzione:
1967
Riscaldamento:
Autonomo

Prezzo ridotto di €1 (10%%)

Ti interessa visionare l'immobile?

Fissa un appuntamento  Fissa un appuntamento

Richiedi informazioni

Clicca su Leggi per aprire l'informativa
* Questi campi sono obbligatori

Calcola il tuo mutuo

Semplice e senza impegno
Anticipo

( % )
Mutuo

( % )

pochi semplici passi

inserisci i tuoi dati
Questionario completato
Grazie per aver richiesto un appuntamento senza impegno con un nostro Consulente del Credito e Assicurativo.

Hai inserito correttamente tutti i dati necessari e a breve riceverai una e-mail con un link da convalidare per inviare i tuoi dati.
Affiliato
Fpv Immobiliare Srl
Via Calatafimi, 2 00047 Marino (RM)
Via Calatafimi, 2 00047 Marino (RM)
Zona: Castelli Romani-Cava Dei Selci-Frattocchie-Castelluccia-Fontana Sala
Mostra su mappa
Orari: 9:00 - 13:00 15:30 - 20:00
Affiliato
Fpv Immobiliare Srl
Via Calatafimi, 2 00047 Marino (RM)

2026 Tecnocasa Franchising S.p.A. - P. IVA 08365160152 - Via Monte Bianco 60/A 20089 Rozzano (MI). Ogni agenzia ha un proprio titolare ed è autonoma. Privacy policy | Policy utilizzo | Cookie policy