Porzione di bifamiliare in vendita

Marino, Via Cosimo Maciocco - Cava Dei Selci
€ 309.000
105 Mq 105 Mq
2 bagni 2 bagni

Porzione di bifamiliare in vendita

Marino, Via Cosimo Maciocco - Cava Dei Selci

Descrizione annuncio

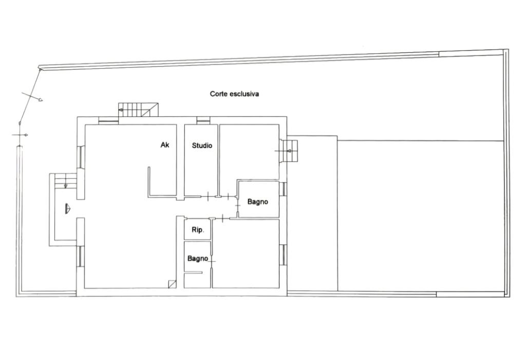
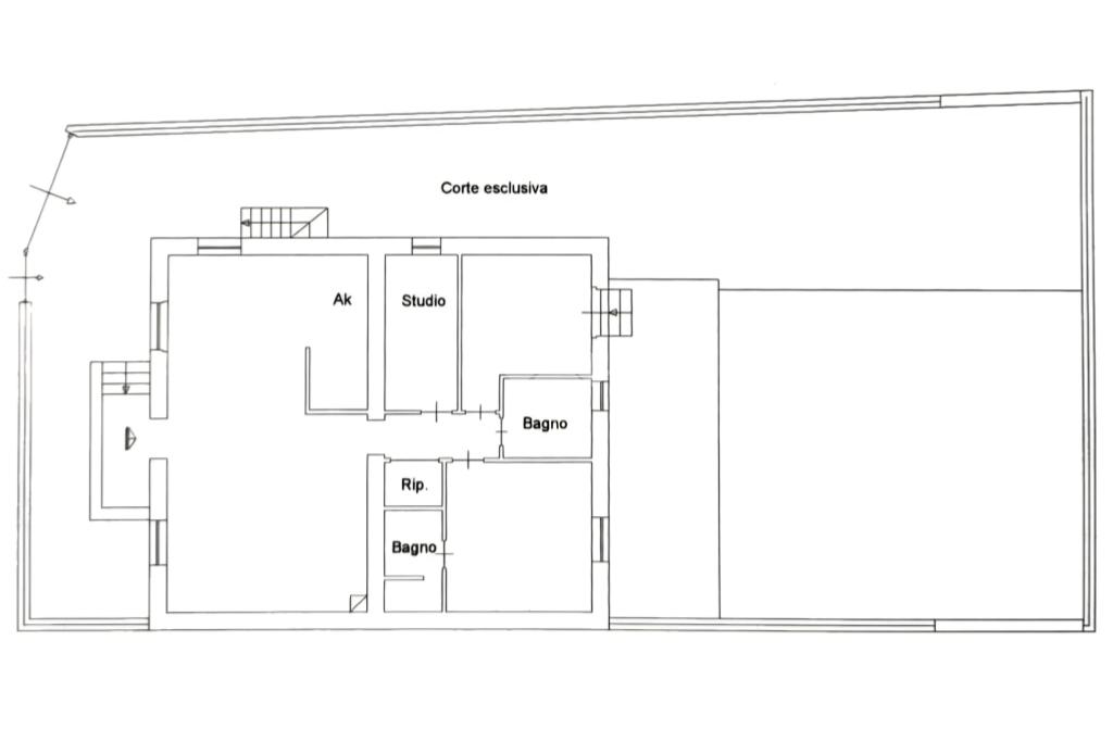
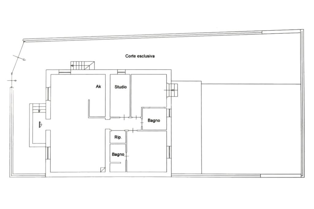
Cava dei Selci: In zona vicina ai servizi primari, proponiamo la vendita di una casa bifamiliare in ottimo stato su unico livello al piano terra con giardino perimetrale.

La soluzione internamente è composta da: ampio salone con cucina a vista, disimpegno con zona lavanderia, camera matrimoniale con bagno interno, due camerette e un secondo bagno finestrato con vasca.

Il valore aggiunto di questo immobile è rappresentato dall'ampio spazio esterno di circa 200 mq, di cui 75 mq in parte a giardino verde: un ambiente ideale per rilassarsi all'aria aperta, godersi le giornate di sole, organizzare pranzi all'aperto e offrire il massimo comfort anche ai vostri amici a quattro zampe. A completare la proprietà, una comoda cantina di circa 40 mq.

ULTERIORI CARATTERISTICHE:

Cappotto termico, pozzo per l'irrigazione del giardino, impianto domotica (per condizionatori e riscaldamento), predisposizione satellitare, finestre a taglio termico, persiane e grate in ferro combinato, riscaldamento a pavimento, condizionatori a pompa di calore, predisposizione allarme, predisposizione cancello automatico, possibilità di molteplici posti auto interni.

I lavori di ristrutturazione sono stati effettuati nell'anno 2021.

LA ZONA: Cava dei Selci è ben servita da scuole, parchi pubblici, supermercati e negozi di prima necessità. Ben servita da mezzi pubblici che collegano la zona con Roma, Ciampino e le zone limitrofe. Raggiungibile in macchina in pochissimi minuti il Grande Raccordo Anulare che collega le varie zone di Roma e a pochi chilometri dai Castelli Romani.

Mostra tutto

Nelle vicinanze

Trasporto pubblico Trasporto pubblico
Santa Maria delle Mole
Santa Maria delle Mole
680 m
Sassone
Sassone
1,3 Km
Santa maria
Santa maria
470 m
santa maria
santa maria
470 m
Ricariche auto elettriche Ricariche auto elettriche
CONCESSIONARIO NISSAN Mirauto
1,1 Km
Mirauto Nissan
1,1 Km
CM Motors | EnelX
2,9 Km
Scuole Scuole
Scuole
680 m
Vivaldi
860 m
Liceo Scientifico Statale "Vito Volterra"
1,5 Km
Scuola Anna Frank
1,6 Km
I.T.C.G. Michele Amari
2,0 Km
Farmacia Farmacia
Farmacia
1,7 Km
Supermercati Supermercati
Top
330 m
Coop
800 m
SISA
1,1 Km
Eurospin
1,2 Km
Iper Dem Ciampino
1,2 Km
Negozi Negozi
KIRK
1,8 Km
Cose di casa
3,0 Km
Bar Bar
Bar
2,4 Km
Chef Express
2,9 Km
Ristoranti Ristoranti
Ristoranti
500 m
Roby dal 1990
1,1 Km
La Madre Paranza
1,1 Km
Il limoncello
1,5 Km
Pizzeria Il Canarino
1,8 Km
Mostra tutto

Caratteristiche

Rif.:
61097873
Piano:
Terra con giardino
Posti auto:
4
Camere da letto:
3
Condizionamento:
Autonomo
Ascensore:
No
Mostra tutto
Prezzo Prezzo
€ 309.000
Rata mutuo Rata mutuo
€ 1.371 / mese
Proponi il tuo prezzoProponi il tuo prezzo
Immobile valutato con TecnoValore

Classe Energetica

Questo immobile è esente da classe energetica
Anno di costruzione:
1971
Riscaldamento:
Autonomo
Tipo impianto:
A pavimento
Tipo alimentazione:
Metano

Ti interessa visionare l'immobile?

Fissa un appuntamento  Fissa un appuntamento

Richiedi informazioni

* Questi campi sono obbligatori

Calcola il tuo mutuo

Semplice e senza impegno
Anticipo

( % )
Mutuo

( % )

pochi semplici passi

inserisci i tuoi dati
Questionario completato
Grazie per aver richiesto un appuntamento senza impegno con un nostro Consulente del Credito e Assicurativo.

Hai inserito correttamente tutti i dati necessari e a breve riceverai una e-mail con un link da convalidare per inviare i tuoi dati.
Affiliato
Fpv Immobiliare Srl
Via Calatafimi, 2 00047 Marino (RM)
Via Calatafimi, 2 00047 Marino (RM)
Zona: Castelli Romani-Cava Dei Selci-Frattocchie-Castelluccia-Fontana Sala
Mostra su mappa
Orari: 9:00 - 13:00 15:30 - 20:00
Affiliato
Fpv Immobiliare Srl
Via Calatafimi, 2 00047 Marino (RM)

2025 Tecnocasa Franchising S.p.A. - P. IVA 08365160152 - Via Monte Bianco 60/A 20089 Rozzano (MI). Ogni agenzia ha un proprio titolare ed è autonoma. Privacy policy | Policy utilizzo | Cookie policy